SIEDLUNG RÜTI

Ruhe und Aussicht - Das bietet die Siedlung Rüti

Die Siedlung Rüti befindet sich auf einem Hügel in unmittelbarer Nähe des Waldes. Eine eigene Schulanlage gehört ebenso zum Rütiquartier wie der neue Sportplatz, die Robinson-Spielplätze und die Bushaltestelle. Sie sind in 6 Minuten mit dem Bus am Bahnhof Ostermundigen. Auch ein Restaurant ist vorhanden

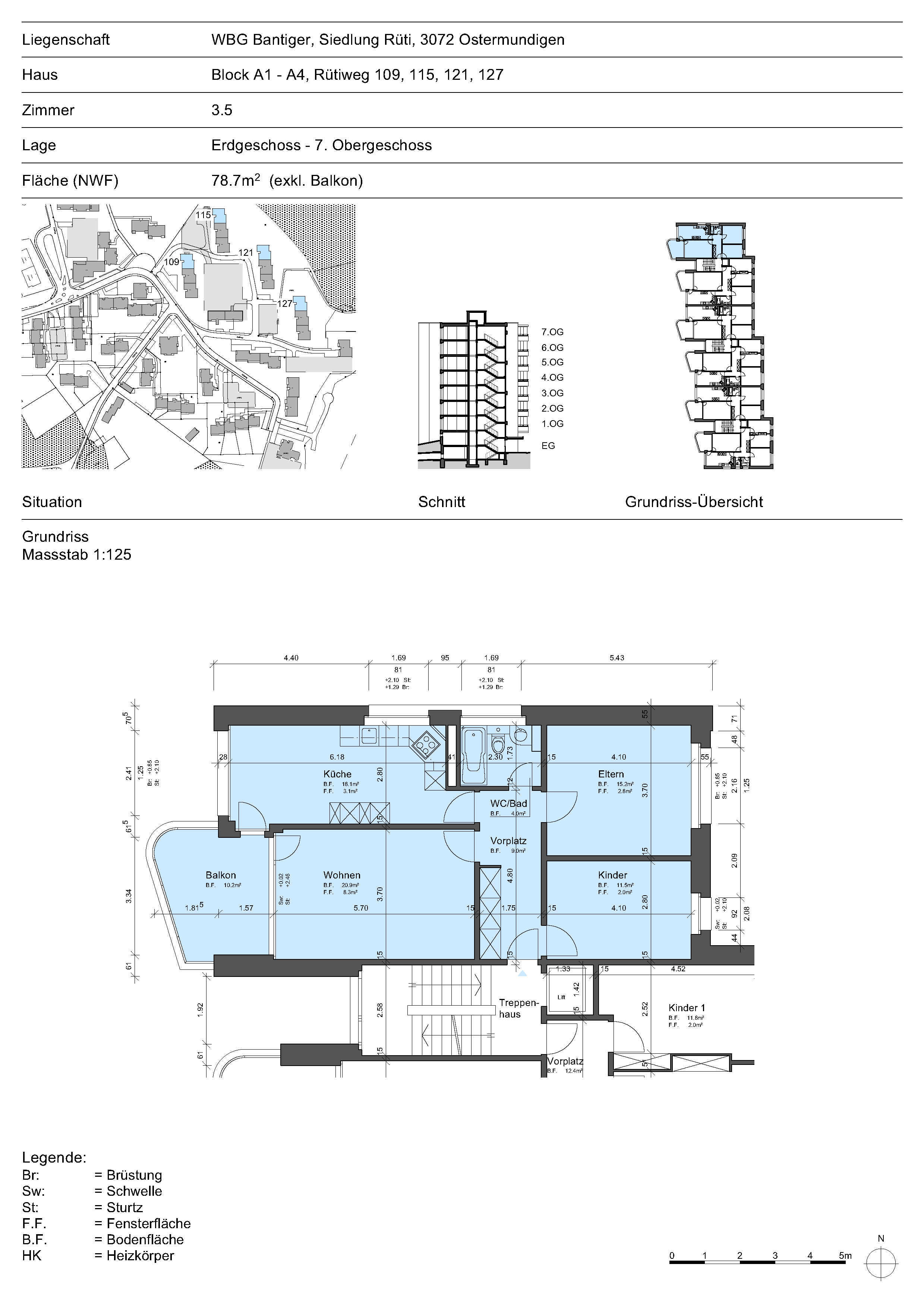
Grundrisse

In den folgenden Abschnitten können Sie die Grundrisse (Pläne) der einzelnen Wohnungen ansehen und wenn gewünscht als PDF herunterladen:

LIEGENSCHAFTEN

WBG Bantiger Ostermundigen

Wohnbaugenossenschaft mit vorzüglichen Bedingungen seit 1953

Image

© 2024 by advanced generation systems

Alle Rechte vorbehalten   |   Privacy Policy  |  V2.0b2073